Temple of Hibis
The Temple of Hibis (Egyptian: Hebet meaning the plough), Persian - c. 6th century BCE, is the largest and most well preserved temple in the Kharga Oasis. Excavations were started out early during the 20th century. Hibis is the finest example of a Persian Period temple in Egypt. Its reliefs are very well preserved, owing to its burial in sand for many centuries. The temple contains a rich religious iconography and a wealth of theological texts in a very unusual style, perhaps the influence of a local style of art which until recent years has barely been studied. One large and unique wall-relief depicts a winged figure of Seth, god of the desert oases, with the head of a falcon. He is painted blue, a colour usually reserved for air deities and is fighting the serpent Apophis. Many deities are represented in the sanctuary and Min, another desert god, was also venerated here.[1]

At Kharga Oasis, the temple at Hibis remains the only witness to the scope and nature of the building activities during the Late Period, before the start of the Ptolemaic Period. Construction at Hibis may have begun in the 26th Dynasty, but the temple was primarily built during the succeeding 27th dynasty and decorated mostly by Darius and completed during the rule of the 30th-Dynasty king Nectanebo II[2]
Location and history
Temple of Hibis is located just over two kilometres north of the modern city of Kharga. The town associated with the Temple, known as the Town of the Plough, was in ancient times the garrisoned, known as the fortress of Qasr el-Ghuieta, capital of the Oasis, easily covering a square kilometre.It lay in the valley between the foothills of Gebels al-Teir and Nadura. There is little known about the ancient town, though early excavations did unearth a few houses with vaulted ceilings and fresco paintings.[3]
The temple was mostly dedicated to the deity Amun, who was also known as the "Lord of Hibis". One side of the temple was dedicated to Theban theology, and on the other, many rooms were erected in honor of the deity Osiris. The decorative program showed notable peculiarities that have not been found elsewhere. The decorated naos has nine registers on its walls, which contain approximately 700 representations of both gods and of what may perhaps be divine statues. At the head of these representations, the king is shown in each register performing a ritual. Grouped by sepat (geographic-religious entities), they present an overview of the active cults of the time, organized by region and interestingly, each sepat takes a form of Osiris.[4]
Construction
.jpg)
The temple was built in honour of the Theban triad which consists of Amon, Mut and Khonso. It dates back to 522 BCE.
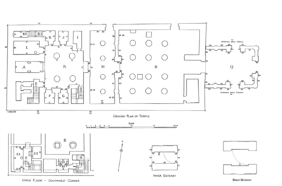
The period of this dynasty is also called the Saite Period after the city of Sais, where its pharaohs had their capital. The construction work started under the rule of Iris and then Ahmos II. However, most of the construction works were completed during the Persian or the Hyksos occupation of Egypt specifically during the reign of Darius I (522 BCE).The temple Of Hibis was enlarged during the period of Nectanebo I (380 -362 BCE) and Nectanebo II (360 -343 BCE). Ptolemy II (285 -246 BCE) has also added the two outmost portals.The temple starts from the East with the sacred lake and the ports. Then there is the Roman gate that dates back to the Roman emperor, Galba, who built this gate in 69 CE. Afterwards, there is the rams' passageway that leads to the major gate of the temple. Afterwards, there is the Sanctum of the temple with its remarkable unique inscriptions.[5]
The construction follows the plan of the traditional Egyptian temple, but underwent many modifications.The hypostyle hall of the Hibis temple was also decorated in an unusual fashion. The walls were laid out as an enormous papyrus roll decorated with vignettes and containing a series of hymns to Amun. Several passages of these hymns are known from earlier texts, such as the "magical" Papyrus Harris and the hymn to the ten bas of Amun from the Edifice of Taharqo at Karnak, which is one of the first examples of a hymn reproduced on a wall painting—a common feature in the later Ptolemaic temples.During the 27th (Persian) Dynasty a mudbrick temple dedicated to Osiris was built in the southern part of the Kharga Oasis. Excavation of this temple (at the site of Ayn Manawir, near Dush) has yielded numerous bronze statues of the god as well as a large quantity of demotic ostraca.[6]
Influences
Persian Interest in Egypt

After Cyrus conquered Babylon and became the Great king of Persia, he began to look for sources of wealth. His vision turned to the west and allowing the Jews to rebuild Jerusalem, according to him was a political decision which would allow him to bring the Jews on his side since they had started perceiving him as their deliverer. But Jerusalem was just a bridge to the treasury of Egypt.These long range plans were carried out by his son and successor, Cambyses (-530-522), who in -525 led his Persian army toward the land which just at this time had lost the long reigning Amasis and the short lived Seti II. The Persians had their plans ready, they lost no time to consolidate their power by taking over the already established fortresses facing Libya and the Nubian regions. This was largely accomplished by Darius I (-522-485) known in Egypt as `Setutre' or `Mesutira'. In thus making Darius known in Egypt the priest Udjahorresnet was instrumental. His cartouche was found in the Temple of Hibis, in the fortress of Qasr el-Ghuieta and on a rare alabaster storage jar found at Susa.[7]
Symbolism
Set was depicted standing on the prow of Ra's night barque spearing Apep in the form of a serpent, turtle, or other dangerous water animals. In some Late Period representations, such as in the Persian Period temple at Hibis in the Kharga Oasis, Set was represented in this role with a falcon's head, taking on the guise of Horus. In the Amduat Set is described as having a key role in overcoming Apep.
References
- ↑ Dunn, Jimmy. "The Temple of Hibis in the Kharga Oasis". August 4th 2011. Retrieved 15 May 2012.
- ↑ Zivie-Coche, Christiane. "Late Period Temples". 2008. UCLA Encyclopedia of Egyptology, Department of Near Eastern Languages and Cultures, UC Los Angeles. Retrieved 16 May 2012.
- ↑ Dunn, Jimmy. "The Temple of Hibis in the Kharga Oasis". August 4th 2011. Retrieved 15 May 2012.
- ↑ Zivie-Coche, Christiane. "Late Period Temples". 2008. UCLA Encyclopedia of Egyptology, Department of Near Eastern Languages and Cultures, UC Los Angeles. Retrieved 16 May 2012.
- ↑ "Kharga Oasis". Unknown. Ask Alladin. Retrieved 15 May 2012.
|first1=missing|last1=in Authors list (help) - ↑ Zivie-Coche, Christiane. "Late Period Temples". 2008. UCLA Encyclopedia of Egyptology, Department of Near Eastern Languages and Cultures, UC Los Angeles. Retrieved 16 May 2012.
- ↑ "21st Dynasty of Egypt". Unknown. Unknown. Retrieved 15 May 2012.
|first1=missing|last1=in Authors list (help)
Coordinates: 25°28′37″N 30°33′22″E / 25.47694°N 30.55611°E
.jpg)
